4 Bedroom
3 Bathroom
1,500 - 2,000 ft2
Bungalow
Forced Air
Acreage
$908,000
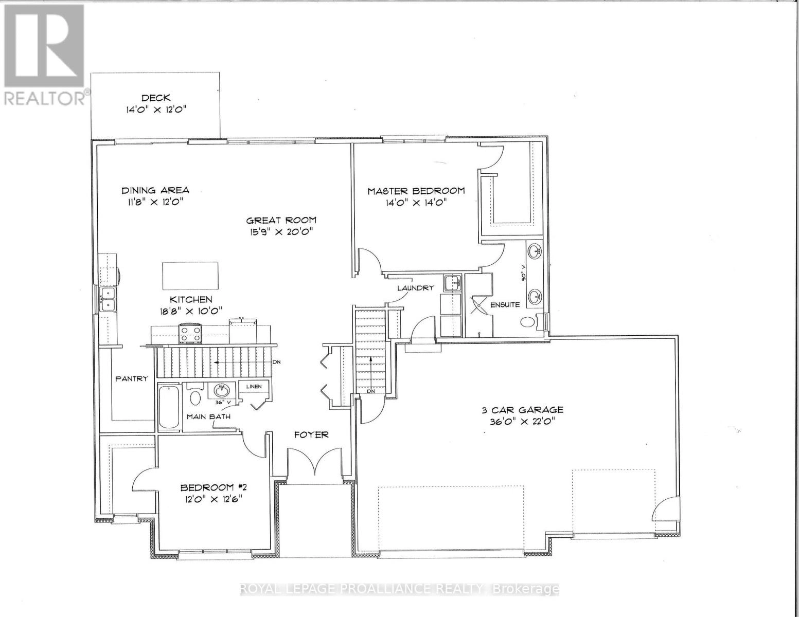
This high quality custom bung is another example of what Duromac Homes is building in the County. Advertised home is an attractive option for those looking for a modern & elegant NEW HOME that takes advantage of the Prov & Federal HST incentive between Apr 1/26 & Mar 31/27. HST relief on new construction affords buyers the ability to acquire a new home at a significant discount. This functional & well-laid out floor plan offers 1690sqft on the main which includes: 2 spacious bdrms both w/ walk-in closets, 2 full baths including ensuite bath, main floor laundry, kitchen island & pantry & attached TRIPLE car garage. Full bsmt (unfinished) allows option of 2 additional bdrms, full bath, rec rm & multiple storage areas. Home is heated/cooled w/ an efficient HEAT PUMP system & forced air propane backup. Other features: custom kitchen by William Design Co., vinyl plank flooring throughout, rear deck & much more. Attractive exterior is a combination of stone & vinyl w/ transom-style windows taking advantage of the 9ft ceilings on the main. The 8.7-acre building lot is nestled on the scenic Victoria Rd, just east of Snider Rd w/ approx. 630ft of road frontage. This wooded parcel features: productive dug well w/ a flow rate exceeding 15 Gallons per min, along w/ an installed driveway & cleared area ready for your dream home. You can choose to purchase the lot as-is, build the provided plan or work w/ local builder Duromac Homes to create a custom home that fits your vision. A variety of house plans are available to accommodate different styles, budgets & preferences, w/ the option to build to suit. Conveniently located in the heart of the area's most celebrated wineries, beaches & restaurants. Bring your plans & dreams or let Duromac Homes assist you with a complete lot & build option. A lot survey, floor plans & a well record available. Attached pictures are sample photos only. These are examples of recent builds from the builder, intended for informational purposes only. (id:59743)
Property Details
|
MLS® Number
|
X12983834 |
|
Property Type
|
Single Family |
|
Community Name
|
Ameliasburg Ward |
|
Features
|
Wooded Area, Level |
|
Parking Space Total
|
11 |
Building
|
Bathroom Total
|
3 |
|
Bedrooms Above Ground
|
2 |
|
Bedrooms Below Ground
|
2 |
|
Bedrooms Total
|
4 |
|
Age
|
New Building |
|
Architectural Style
|
Bungalow |
|
Basement Type
|
Full |
|
Construction Style Attachment
|
Detached |
|
Exterior Finish
|
Stone |
|
Fire Protection
|
Smoke Detectors |
|
Foundation Type
|
Poured Concrete |
|
Heating Fuel
|
Propane |
|
Heating Type
|
Forced Air |
|
Stories Total
|
1 |
|
Size Interior
|
1,500 - 2,000 Ft2 |
|
Type
|
House |
|
Utility Water
|
Dug Well |
Parking
Land
|
Acreage
|
Yes |
|
Sewer
|
Septic System |
|
Size Depth
|
881 Ft ,10 In |
|
Size Frontage
|
629 Ft |
|
Size Irregular
|
629 X 881.9 Ft |
|
Size Total Text
|
629 X 881.9 Ft|5 - 9.99 Acres |
|
Zoning Description
|
Rr2 |
Rooms
| Level |
Type |
Length |
Width |
Dimensions |
|
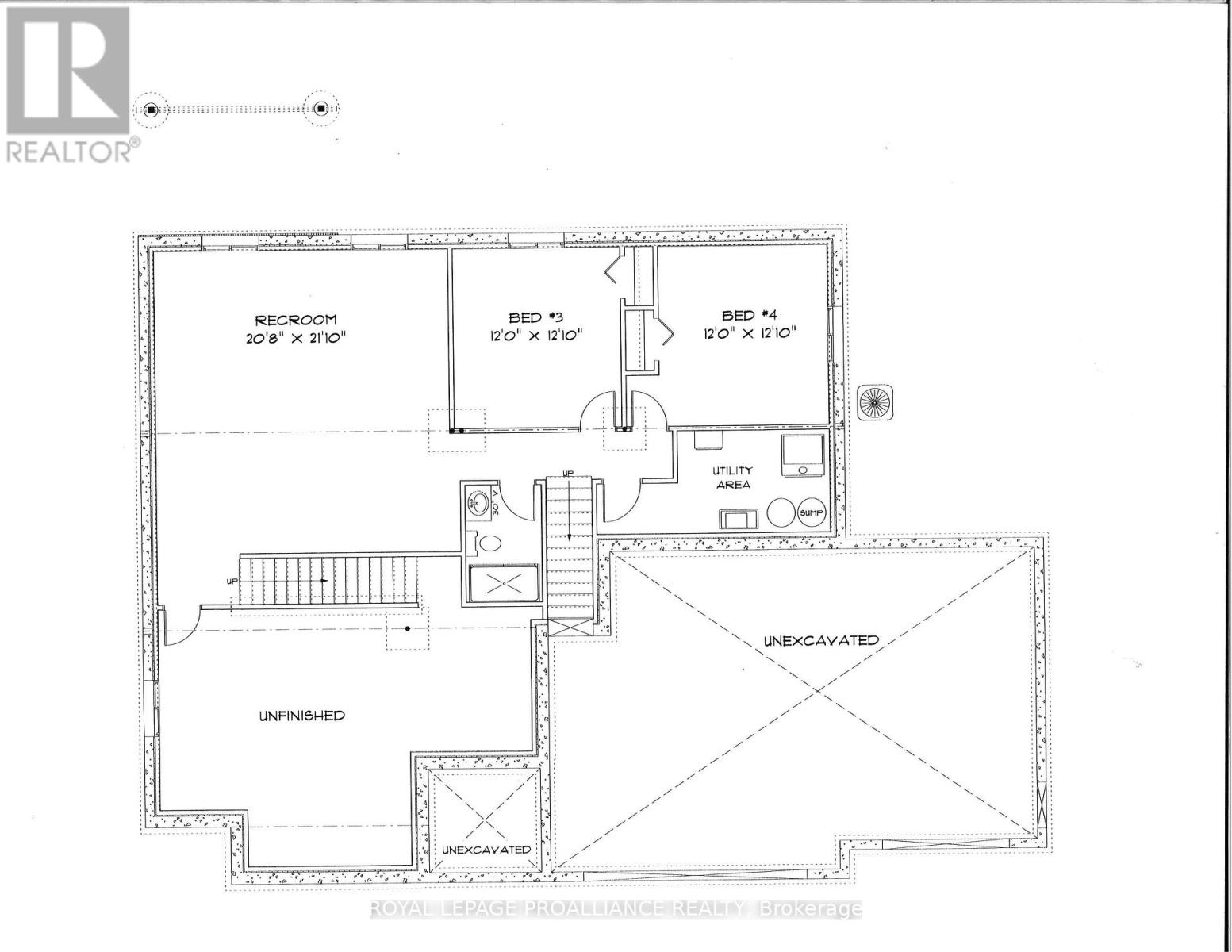
Lower Level |
Bedroom 3 |
3.66 m |
3.91 m |
3.66 m x 3.91 m |
|
Lower Level |
Bedroom 4 |
3.66 m |
3.91 m |
3.66 m x 3.91 m |
|
Lower Level |
Recreational, Games Room |
6.3 m |
6.65 m |
6.3 m x 6.65 m |
|
Main Level |
Bedroom 2 |
3.66 m |
3.81 m |
3.66 m x 3.81 m |
|
Main Level |
Kitchen |
5.69 m |
3.05 m |
5.69 m x 3.05 m |
|
Main Level |
Dining Room |
3.56 m |
3.66 m |
3.56 m x 3.66 m |
|
Main Level |
Great Room |
4.8 m |
6.1 m |
4.8 m x 6.1 m |
|
Main Level |
Primary Bedroom |
4.27 m |
4.27 m |
4.27 m x 4.27 m |
Utilities
https://www.realtor.ca/real-estate/29587824/2461-victoria-road-prince-edward-county-ameliasburg-ward-ameliasburg-ward