317 Lindan Avenue Selwyn, Ontario K9L 1K8
$519,900
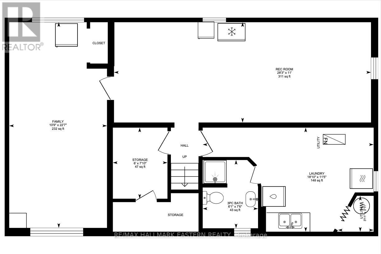
Welcome to 317 Linden Ave in the Woodland Acres subdivision, a solid 3+1 bedroom raised bungalow offering space, flexibility, and a location that works for both families and investors. Set in Selwyn Township, you benefit from lower property taxes while still being connected to municipal water and sewer services, offering the convenience of city living without the higher cost. The home features a functional layout with three bedrooms on the main level and an additional bedroom below and family room, along with a separate entrance and egress windows already in place. This setup makes it well suited for multi-generational living, an in law suite, or potential income conversion. The neighbourhood is known for being safe and quiet, with a strong sense of community. Within walking distance, you will find two playgrounds and a picnic area along the Otonabee River, offering great outdoor space close to home. There are also nearby walking trails that are ideal for daily exercise or time outside with your pets. For students or commuters, the location is especially convenient. Trent University is within walking distance, and a bus stop is just steps from the front door, making transportation simple and reliable. Whether you are looking for a home with room to grow or an investment property with strong potential, this property offers a practical opportunity in a desirable area. A pre-listing home inspection has been completed by AmeriSpec for your peace of mind. Floor plans and video tours are available for your convenience through the BROCHURE BUTTON on realtor.ca. Book your private showing today! (id:59743)
Open House
This property has open houses!
11:00 am
Ends at:12:30 pm
Property Details
| MLS® Number | X13045984 |
| Property Type | Single Family |
| Community Name | Selwyn |
| Equipment Type | Water Heater |
| Parking Space Total | 3 |
| Rental Equipment Type | Water Heater |
Building
| Bathroom Total | 2 |
| Bedrooms Above Ground | 3 |
| Bedrooms Below Ground | 1 |
| Bedrooms Total | 4 |
| Appliances | Dryer, Stove, Washer, Window Coverings, Refrigerator |
| Architectural Style | Raised Bungalow |
| Basement Development | Finished |
| Basement Type | Full (finished) |
| Construction Style Attachment | Detached |
| Cooling Type | Central Air Conditioning |
| Exterior Finish | Brick |
| Foundation Type | Block |
| Heating Fuel | Natural Gas |
| Heating Type | Forced Air |
| Stories Total | 1 |
| Size Interior | 700 - 1,100 Sqft |
| Type | House |
| Utility Water | Municipal Water |
Parking
| Carport | |
| Garage | |
| Tandem |
Land
| Acreage | No |
| Sewer | Sanitary Sewer |
| Size Depth | 110 Ft |
| Size Frontage | 55 Ft ,8 In |
| Size Irregular | 55.7 X 110 Ft |
| Size Total Text | 55.7 X 110 Ft |
| Zoning Description | R1 |
Rooms
| Level | Type | Length | Width | Dimensions |
|---|---|---|---|---|
| Basement | Bedroom 4 | 6.89 m | 3.28 m | 6.89 m x 3.28 m |
| Basement | Laundry Room | 5.73 m | 3.49 m | 5.73 m x 3.49 m |
| Basement | Bathroom | 2.29 m | 1.85 m | 2.29 m x 1.85 m |
| Basement | Other | 2.38 m | 1.83 m | 2.38 m x 1.83 m |
| Main Level | Kitchen | 3.28 m | 3.12 m | 3.28 m x 3.12 m |
| Main Level | Living Room | 5.47 m | 3.67 m | 5.47 m x 3.67 m |
| Main Level | Bedroom | 3.93 m | 3.65 m | 3.93 m x 3.65 m |
| Main Level | Bedroom 2 | 3.33 m | 2.81 m | 3.33 m x 2.81 m |
| Main Level | Bedroom 3 | 3.65 m | 2.6 m | 3.65 m x 2.6 m |
| Main Level | Bathroom | 2.26 m | 1.95 m | 2.26 m x 1.95 m |
Utilities
| Cable | Available |
| Electricity | Installed |
| Sewer | Installed |
https://www.realtor.ca/real-estate/29658773/317-lindan-avenue-selwyn-selwyn
Salesperson
(705) 875-1341
www.wadehamblin.ca/
www.facebook.com/PtboRealtor
www.instagram.com/ptborealtor/
91 George Street N
Peterborough, Ontario K9J 3G3
(705) 743-9111
(705) 743-1034
Contact Us
Contact us for more information

































